Transformation piscine en loft

Transformation d'une piscine intérieure en loft à Aix-en-Provence
Transformation / Loft • Aix-en-Provence • Février 2026

En collaboration avec Franck Mareigner - Architecte d'intérieur


Transformation d'une piscine en loft à Aix-en-Provence : un potentiel inexploité

Longtemps perçue comme le summum du luxe, la piscine d'intérieur devient fréquemment, au fil des années, un espace délaissé. Coûteuse à chauffer et complexe à entretenir, elle finit souvent par ne plus être utilisée. C’est le constat fait par la propriétaire de cette maison individuelle située près d’Aix-en-Provence, dont l’extension abritait un ancien bassin croupissant à l'abandon.

La piscine d'origine avant les travaux

Initialement, l'idée de notre cliente était expéditive : condamner le trou pour y aménager un appartement locatif classique. Toutefois, lors de la visite des lieux, notre regard d'expert a décelé un potentiel insoupçonné. Le volume excavé de 35 m², couplé à une majestueuse hauteur sous plafond, une charpente apparente en bois et de larges ouvertures vers l'extérieur, offrait une occasion architecturale unique.

Le projet a donc pris une tout autre dimension : transformer cette contrainte structurelle en un sublime loft en duplex, inondé de lumière, fluide et parfaitement intégré à la bâtisse existante.


Les défis de la rénovation d'un bassin intérieur abandonné

Rénover une pièce hébergeant une ancienne piscine engendre des défis singuliers. Inadaptée aux modes de vie contemporains – surtout quand la propriété possède déjà un bassin extérieur –, cette installation devient un véritable fardeau technique.

Plusieurs contraintes se posaient dès le départ :

Détails des travaux dans le bassin Reprise de la structure du bassin

Dès les premiers coups de marteau, la complexité technique s'est confirmée. En retirant l'ancien escalier aquatique, nos artisans ont découvert une poche d'eau sous pression, révélant de sérieuses fissures structurelles. Pour viabiliser ce futur espace de vie – et particulièrement la chambre prévue en contrebas –, il a fallu colmater, consolider et étanchéifier le cuvelage de manière irréprochable. Ignorer l'impact d'une telle structure sur l'enveloppe du bâtiment aurait été une grave erreur.


De la piscine au loft : un parti-pris architectural fort pour cette rénovation

Vue 3D du projet d'aménagement

Au lieu d'effacer purement et simplement le bassin, l'objectif a été de sublimer sa profondeur. Cette excavation représentait un gain de volume inestimable, quasiment impossible à recréer en surface aujourd'hui sans de lourdes démarches d'urbanisme.

La ligne directrice s'est articulée autour de trois axes :

En jouant sur ces différents paliers, les perspectives s'entrecroisent. Le futur logement gagne en lisibilité, s'affranchit des standards d'un appartement plat et dialogue harmonieusement avec l'existant.

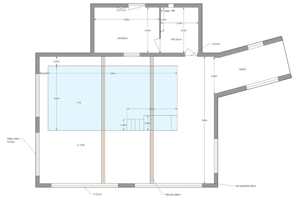
Plan de la transformation

L'anticipation des exigences techniques de l'aménagement intérieur

Métamorphoser une zone aquatique en habitation chaleureuse requiert une ingénierie de précision et une étude rigoureuse avant le moindre aménagement.

Mise en place des piliers et de la structure

Reprise en sous-œuvre et stabilité

Avant d'ajouter du poids, la carcasse de la piscine a été traitée contre les infiltrations. La nouvelle structure porteuse a été méticuleusement calibrée pour soutenir le nouveau plancher de l'étage sans empiéter sur le confort des pièces inférieures.

Assainissement de l'air

L'historique humide de la pièce nous a imposé de repenser entièrement le système de ventilation. Des matériaux hydrofuges et un réseau de renouvellement d'air performant ont été installés pour garantir un environnement sain au quotidien.

Optimisation de la clarté

Profitant de larges baies vitrées préexistantes donnant sur la terrasse et la nature, nous avons maximisé la pénétration de la lumière :

Ces éléments vitrés permettent à la lumière naturelle de cascader visuellement jusqu'aux zones les plus enfouies.

Création de surface habitable (Loi Carrez)

Ce tour de force a permis de décupler la surface habitable officielle de la maison. En exploitant les cavités supérieures à 1m80, de précieux mètres carrés ont été créés de toutes pièces, sans la moindre extension foncière.


Un agencement atypique en trois dimensions : création d'un duplex et souplex

L'organisation du loft s'articule de façon très ergonomique autour de ses différents paliers.

Le niveau principal est dédié à la convivialité. Il accueille un bel espace décloisonné réunissant le salon, la salle à manger et la cuisine, le tout tourné vers une grande terrasse baignée de soleil.

Le salon aménagé

À partir de ce cœur de vie, la circulation s'opère sur deux axes distincts :

La chambre en souplex La chambre en duplex

Petit clin d'œil à l'histoire du bâtiment : la cave aménagée sous la cuisine a volontairement conservé les petites mosaïques bleutées du bassin originel. Une relique architecturale subtilement préservée et intégrée au nouveau décor.


Une renaissance spectaculaire pour ce loft à Aix-en-Provence

Vue globale du loft réinventé Une autre vue du loft

Le pari est totalement gagné. Ce qui était autrefois un fardeau immobilier est devenu le joyau de la propriété. Le charme opère à tel point que la cliente a révisé ses plans initiaux : adieu le projet de location passive, elle a pris la décision de s'installer elle-même dans ce loft majestueux et de louer le reste de sa maison !

Cette réalisation prouve qu'un espace considéré comme perdu peut se muer en un formidable atout foncier. Sans couler le moindre mètre carré de béton en extérieur et sans imperméabiliser les sols du jardin, l'existant a été magnifié et valorisé de façon spectaculaire.


Conclusion de cette rénovation d'ampleur

Ce chantier reflète parfaitement la vision d’ACR Provence et de ses partenaires architectes dans les Bouches-du-Rhône : savoir décrypter le bâti existant pour en tirer le meilleur parti spatial et structurel. Que vous ayez besoin d'une entreprise de rénovation à Aix-en-Provence pour repenser vos espaces intérieurs, ou d'experts pour une extension de maison à Aix-en-Provence, nous vous accompagnons sur tous vos projets de gros et second œuvre.

Lire l'article original sur le site de notre architecte partenaire

Retour aux réalisations